(56.3 кв.м.)

Адрес: Краснодарский край, Краснодар г., Карасунский, Автолюбителей ул., д.1Г, к.3

на карте

Общая площадь: 56.3 м²

Жилая площадь: 50 м²

Этаж: 1 из 24

  • Санузел: 1
  • Парковка: да
  • Новостройка: нет

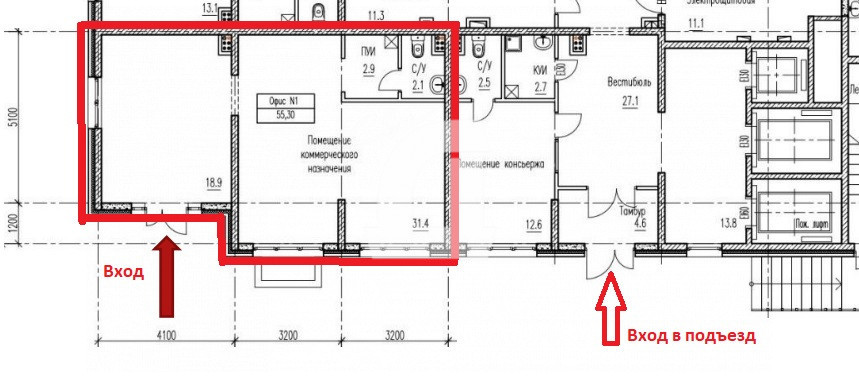
Предлагается в аренду помещение площадью 56 кв.м на ГМР

О ПОМЕЩЕНИИ:

Коммерция располагается на первом этаже 24х этажного дома, в жилом комплексе "Стрижи". Помещение правильной, прямоугольной формы, практичной планировки, с санузлом. Все коммуникации центральные. Светопрозрачная входная группа. Свой отдельный вход с улицы.
Помещение в пред чистовой отделке, что дает возможность выполнить ремонт под соответствующий бизнес.

О КОМПЛЕКСЕ:
В ЖК Стрижи - обжитой район, все 4 дома сданы в эксплуатацию, 1015 квартир. Общая численность жителей около 2.5 тысяч. На территории достаточно парковочных мест.

НАЗНАЧЕНИЕ:
Помещение свободного назначения, подойдет для офиса, кондитерской, медицинского кабинета, аптеки, стоматологии, салона красоты, продленки, развивающего, детского центра и др.

Звоните, договоримся о показе!

Местоположение

Рассчитать ипотеку

Выбирайте надежных партнеров – и будьте уверены в завтрашнем дне!

  • # Сбербанк
  • # Банк ВТБ
  • # Альфабанк
  • # Открытие
  • # Газпромбанк
  • # Банк ПСБ

50.000 ₽

888 ₽ / кв.м.

Людмила Рубан

Людмила Рубан

Связаться
#

Нужна помощь в подборе
недвижимости?

Позвоните по телефону +7 (861) 279-22-22, приходите в один из офисов агентства в удобное для Вас время или заполните простую форму на сайте и обсудите с риэлтором-экспертом все интересующие Вас вопросы!